BÁO GIÁ CỬA THÉP CHỐNG CHÁY MỚI NHẤT NĂM 2026
Cháy nổ 🔥 hỏa hoạn là điều mà bất cứ ai trong chúng ta đều không mong muốn xảy ra. Vậy ngăn chặn cháy nổ – hỏa hoạn là điều rất cần thiết. Để đảm bảo cuộc sống của bạn,👨👩👧 gia đình bạn và mọi người xung quanh được an toàn, yên tâm sinh sống, làm việc và học tập thì hôm nay KingDoor xin chia sẻ đến các bạn dòng sản phẩm Cửa Thép Chống Cháy . Đây là loại Cửa có khả năng ngăn chặn đám cháy và khói lan ra các khu vực khác. Như thế, người trong đám cháy sẽ có thêm thời gian và cơ hội thoát ra ngoài, làm giảm tổn thất tài sản lẫn con người.👨🚒
🏠 Showroom: 235 QL1K, Linh Xuân, Thủ Đức, Thành phố Hồ Chí Minh
☎Hotline: 0846.11.27.27
Fanpage: CỬA THÉP CHỐNG CHÁY

Cửa thép chống cháy là gì?
Cửa thép chống cháy là loại cửa được làm từ thép và các vật liệu chống cháy chuyên dụng, có khả năng ngăn chặn lửa và khói lan truyền trong một khoảng thời gian nhất định (thường 60 phút, 70 phút, 90 phút hoặc 120 phút tùy theo cấp độ).
Chức năng chính của cửa là:
-
Ngăn lửa và khói lan sang khu vực khác.
-
Bảo vệ lối thoát hiểm an toàn cho con người khi xảy ra hỏa hoạn.
-
Đáp ứng tiêu chuẩn PCCC trong các công trình dân dụng và công nghiệp.

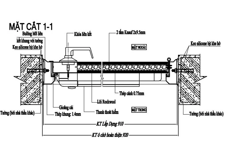
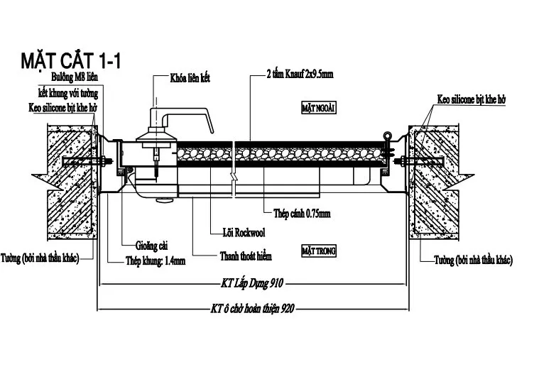
Cấu tạo cửa thép chống cháy
- Độ dày cánh 50mm
- Khung bao 50x100mm làm bằng thép nguội mạ kẽm dày 1,4mm (70P); 1,5mm (90P)
- Hai mặt đối xứng, mỗi mặt được ốp bởi 01 tấm thép dày 0,75mm (60P); 0.95mm (90P)
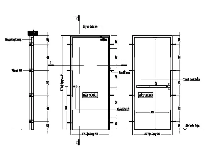
- Kích thước sản xuất tối đa cửa 1 cánh: 1200×2400, Cửa 2 cánh 2400x2400mm
- Lõi cửa nhồi lớp giấy tổ ong (tiếng anh là Honeycomb paper) được nhồi ép sợi khoáng chống cháy và cách nhiệt
- Vật liệu trong cánh : Mỗi mặt bên được bố trí 1 tấm thạch cao chống cháy dày 9.5mm,bên
trong điền đầy bông đá Dragon rockwool. - Bộ cửa hoàn thiện tiêu chuẩn gồm cánh, khung bao, phụ kiện đính kèm cùng sơn tĩnh điện hoàn thiện
Vị trí lắp đặt cửa thép chống cháy
Bảng báo giá cửa thép chống cháy mới nhất năm 2026
| STT | Sản Phẩm | Giá sản phẩm | Đơn Vị Tính |
| 1 | Cửa thép an toàn sơn tỉnh điện 60P-70 | 1.850.000 | m2 |
| 2 | Cửa thép an toàn sơn tỉnh điện 90P | 2.000.000 | |
| 3 | Cửa thép an toàn sơn tỉnh điện 120P | 3.100.000 | |
| 4 | Cửa thép chống cháy 60-70 phút (Có kiểm định PCCC) | 2.550.000 | |
| 5 | Cửa thép chống cháy 90 phút (Có kiểm định PCCC) | 2.850.000 | |
| 6 | Cửa thép chống cháy sơn vân gỗ (Có kiểm định PCCC) | 3.250.000 |

* Khách hàng khi mua cửa thép chống cháy lưu ý những vấn đề sau đây nhé:
- Cửa thép chống cháy kết cấu mới có kiểm định PCCC.
- Hồ sơ kiểm định ( hồ sơ kiểm định chung sẽ tiết kiệm chi phí hơn )
- Nên chọn phù kiện phù hợp với cửa thép chống cháy bao nhiêu phút.
- Việc gia công ô kính có kiểm định PCCC sẽ phát sinh chi phí từ 1.500.000đ – 5.400.000đ
Lưu ý: Giá trên chưa bao gồm phụ kiện, chi phí vận chuyển và lắp đặt.
💥 Phí vận chuyển tại TPHCM: 400.000/chuyến ( nội thành TPHCM ) hoặc các khu vực tỉnh thành khác lận cân báo giá khi có địa chỉ cụ thể của khách hàng => LIÊN HỆ NGAY : 0846 11 27 27 (ZALO)
💦 Miễn phí vận chuyển khi khách mua từ 3 bộ trở lên
💥Phí lắp đặt tại TPHCM: 550.000 – 900.000/bộ tùy theo số lượng và quy cách thi công khách hàng.
💥💥LIÊN HỆ NGAY NHẬN NHIỀU ƯU ĐÃI TRONG THÁNG NÀY: TỪ MIỄN PHÍ VẬN CHUYẾN, TẶNG KHÓA, PHỤ KIỆN,…. HOẶC GIẢM GIÁ TRỰ TIẾP GIÁ TRỊ LÊN ĐẾN 1 CHỈ VÀNG
☎ Hotline: 0846.11.27.27 (NVKD TRINH)
=> Video hoàn thiện cửa thoát hiểm chống cháy 70P cho nhà xưởng
Những yếu tố quyết định giá cửa thép chống cháy
-
Cấp độ thời gian chống cháy (EI60/EI90/EI120) — cấp càng cao, vật liệu và gia công càng tốn kém.
-
Độ dày thép & kết cấu khung — thép dày, khung gia cố tăng giá.
-
Phụ kiện: khóa chống cháy, bản lề inox 4 cái/cánh, gioăng chống khói, tay co thủy lực, ô kính chịu lửa (nếu có).
-
Hoàn thiện bề mặt: sơn tĩnh điện đơn sắc rẻ hơn so với sơn vân gỗ hoặc phủ film.
-
Vận chuyển & lắp đặt : khu vực xa xưởng sản xuất có thể phát sinh phí.
- Chi phí kiểm định hồ sơ PCCC: Tùy vào số lượng chi phí kiểm định PCCC sẽ khác nhau

Báo giá phụ kiện cửa thép chống cháy
+ Ngưỡng cửa ngăn khói (Doorsilk) cho cửa đơn: 600.000đ/ bộ
+ Ngưỡng cửa ngăn khói (Doorsilk) cho cửa đôi: 1.200.000đ/ bộ
+ Thanh thoát hiểm đơn: 1.200.000đ/ cái
+ Thanh thoát hiểm đôi (có chốt cửa): 2.800.000đ/ bộ
+ Khóa liên kết thanh thoát hiểm H10: 700.000đ/ bộ
+ Khóa tay gạt Huy Hoàng: 890.000đ/ bộ
+ Tay đẩy hơi Neo 500.000đ/ cái
+ Bản lề Vikini: 50.000đ/ cái
+ Chốt âm cửa đôi: 200.000đ/bộ
Phí cấp cấp hồ sơ kiểm định cục PCCC
| THÔNG TIN SỐ LƯỢNG | GIẤY CHUNG | PHÍ KIỂM ĐỊNH |
| Chi phí kiểm định riêng công trình báo giá cửa thép chống cháy từ 1 < 10 bộ. | Lô | 3.000.000 |
| Chi phí kiểm định cửa thép chống cháy tại từ trên 10 bộ đến 20 bộ. | Lô | 5.000.000 |
| Chi phí kiểm định cửa thép chống cháy công trình từ trên 20 bộ đến 30 bộ. | Lô | 7.000.000 |
| Chi phí kiểm định cửa thép chống cháy từ trên 30 bộ đến 40 bộ. | Lô | 8.000.000 |
| Chi phí kiểm định cửa thép chống cháy từ trên 40 bộ đến 50 bộ. | Lô | 10.000.000 |
| Chi phí kiểm định báo giá cửa thép chống cháy từ trên 50 bộ đến 60 bộ. | Lô | 12.000.000 |
| Chi phí kiểm định cửa thép chống cháy từ trên 60 bộ đến 70 bộ. | Lô | 13.000.000 |
| Chi phí kiểm định riêng công trình cửa thép chống cháy từ trên 70 bộ đến 80 bộ. | Lô | 15.000.000 |
| Chi phí kiểm định riêng công trình cửa thép chống cháy từ trên 80 bộ đến 90 bộ. | Lô | 17.000.000 |
| Chi phí kiểm định riêng công trình báo giá cửa thép chống cháy tại từ trên 90 bộ đến 100 bộ. | Lô | 20.000.000 |
Ưu điểm cửa thép chống cháy
- Khả năng chống cháy vượt trội
- Chịu được lửa từ 60 – 120 phút (tùy loại), giúp ngăn chặn cháy lan và tạo điều kiện thoát hiểm an toàn.
- Tuân thủ tiêu chuẩn PCCC
- Được kiểm định theo quy chuẩn an toàn phòng cháy chữa cháy, bắt buộc lắp đặt ở nhiều công trình công cộng, tòa nhà cao tầng.
- Đa dạng mẫu mã
- Có thể sơn tĩnh điện, phủ vân gỗ, thiết kế hiện đại phù hợp cho nhà ở, văn phòng, chung cư, nhà xưởng…
- Độ bền cao
- Làm từ thép tấm dày, phủ sơn tĩnh điện chống gỉ, chịu va đập tốt, tuổi thọ lâu dài.
- An toàn và bảo vệ tài sản
- Ngoài chống cháy, cửa còn có khả năng chống trộm, cách âm và cách nhiệt tốt.
- Giá thành hợp lý
- So với các loại cửa gỗ tự nhiên hoặc cửa đặc biệt khác, cửa thép chống cháy có mức giá phải chăng, bền đẹp theo thời gian.

Hình ảnh thực tế cửa thép chống cháy hoàn thiện tại công trình
Tham khảo: CỬA GỖ CHỐNG CHÁY

Thông tin liên hệ Báo giá cửa thép chống cháy mới nhất năm 2026
🌲Công ty cổ phần KINGDOOR ✅ hiện đang là đơn vị bán lẻ số một Việt Nam về nội thất Cửa. Chúng tôi chuyên cung cấp, lắp đặt Cửa Thép Chống Cháy tại Thành Phố Hồ Chí Minh và các tỉnh lân cận. Công ty chúng tôi tự tin với sản phẩm Cửa Thép Chống Cháy giá rẻ nhất thị trường.
Hiện các sản phẩm tại Công ty KINGDOOR đã được phê duyệt
🔥 Là sản phẩm phù hợp với các quy định về PCCC
🔥 Được phép sử dụng trong các công tác PCCC
🏠 Showroom: 235 QL1K, Linh Xuân, Thủ Đức, Thành phố Hồ Chí Minh
☎Hotline: 0846.11.27.27
Website: cuagocongnghiep.net.vn
Fanpage: CỬA THÉP CHỐNG CHÁY
HỆ THỐNG CỬA HÀNG QUÝ KHÁCH CÓ THỂ XE QUA XEM MẪU

THAM KHẢO THÊM
Quý khách hàng xem báo giá tại đây:
💥 Cửa Gỗ Chống Cháy tiêu chuẩn PCCC
💥 Cửa Thép Chống Cháy tiêu chuẩn PCCC
KingDoor trân trọng cảm ơn quý khách!
















