Giá cửa thép chống cháy tại Phan Thiết – Bình Thuận
Bạn đang tìm cửa thép chống cháy chất lượng, giá tốt tại Phan Thiết ? Chúng tôi cung cấp đa dạng mẫu mã, đạt chuẩn PCCC, với mức giá cạnh tranh – phù hợp cho nhà ở, khách sạn, chung cư, công trình công cộng. Cùng tham khảo bảng giá dưới đây để chọn sản phẩm phù hợp nhất!
Vị trí lắp đặt cửa thép chống cháy
Cửa thép chống cháy với đặt tính chống cháy, chống trộm hiệu quả: Nên có thể sử dụng cửa tại các vị trí như : Cửa nhà kho , cửa thoát hiểm , cửa nhà xưởng , cửa hành lang …. . Cho các khu nhà cao tầng , nhà xưởng , chung cư , khách sạn … . Nhằm mục đích ngăn chặn lửa và khói đảm bảo công tác phòng cháy và chữa cháy .
Ưu điểm nổi bật cửa thép chống cháy
🔥 Khả năng chịu lửa cao: Cửa thép chống cháy có khả năng Ngăn lửa, khói lan trong 60–90 phút.
🧱 Kết cấu chắc chắn, bền bỉ: Làm từ thép mạ kẽm, không cong vênh, mối mọt.
🧯 Đạt chuẩn PCCC: Có chứng nhận kiểm định an toàn.
🌪️ Ngăn khói hiệu quả: Có ron chống cháy tự nở khi nhiệt độ cao.
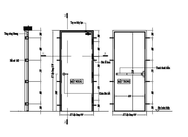
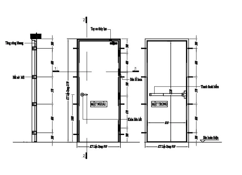
🛡️ An toàn: Kết hợp tay co, khóa chuyên dụng, thanh thoát hiểm.
🎨 Đa dạng mẫu mã: Sơn tĩnh điện, có thể làm vân gỗ, ô kính.
🛠️ Dễ lắp đặt & bảo trì: Nhanh gọn, vệ sinh dễ dàng.

Giá cửa thép chống cháy tại Phan Thiết – Bình Thuận
| DIỄN GIẢI | Giá tiền (vnđ/ m2) |
| Cửa thép chống cháy EI70 (thời gian chống cháy 70 phút) | 2.310.000 |
| Cửa thép chống cháy EI90 (thời gian chống cháy 90 phút) | 2.590.000 |
| Cửa thép an toàn sơn tĩnh điện | 1.680.000 |
| Cửa thép an toàn sơn tĩnh điện | 1.820.000 |
(Giá trên đã bao gồm cánh cửa, khung bao, chưa bao gồm vận chuyển, lắp đặt và phụ kiện)

Giá trọn bộ cửa thép chống cháy EI70 (CCĐ) tại Phan Thiết
| Diễn giải | Thành tiền |
| Cửa thép chống cháy EI70 (70 phút)
Kích thước: 1000 x 2200mm
|
5.082.000 |
| Bản lề NPL | 200.000 |
| Khóa tay gạt Huy Hoàng | 700.000 |
| Tổng giá trị hoàn thiện bộ cửa thép chống cháy | 6.882.000 |
* Lưu ý:
– Tổng giá trên chưa bao gồm chi phí vận chuyển và chi phí lắp đặt tại Phan Thiết (Chí phí lắp đặt giao động từ 800.000đ – 1.000.000đ/bộ )
– Chưa bao gồm thuế V.A.T 10%
– Tổng giá sẽ dao động nếu như có sự thay đổi kích thước, kiểu dáng, địa điểm công trình,…

Giá trọn bộ cửa thép chống cháy EI90 có kiểm định
| Diễn giải | Thành tiền |
| Cửa thép chống cháy EI90 (90 phút)
Kích thước: 1100 x 2200mm
|
6.268.000 |
| Bản lề NPL | 200.000 |
| Ô kính chống cháy kiểm định | 1.200.000đ |
| Thanh thoát hiểm đơn | 1.200.000 |
| Tổng giá trị hoàn thiện bộ cửa thép chống cháy 90P | 9.068.000 |
* Lưu ý:
– Tổng giá trên chưa bao gồm chi phí vận chuyển và chi phí lắp đặt tại Phan Thiết (Chí phí lắp đặt giao động từ 800.000đ – 1.000.000đ/bộ )
– Chưa bao gồm thuế V.A.T 10%
– Tổng giá sẽ dao động nếu như có sự thay đổi kích thước, kiểu dáng, địa điểm công trình,…

Giá trọn bộ cửa thép chống cháy 2 cánh EI70 (CCĐ)
| Diễn giải | Thành tiền |
| Cửa thép chống cháy – cửa đôi EI70 (70 phút)
Kích thước: 1800 x 2200mm
|
9.148.000 |
| Bản lề NPL | 400.000 |
| Khóa tay gạt Huy Hoàng | 700.000 |
| Tay đẩy hơi Neo | 1.000.000 |
| Chốt âm | 200.000 |
| Tổng giá trị hoàn thiện bộ cửa thép chống cháy | 11.448.000 |
* Lưu ý:
– Tổng giá trên chưa bao gồm chi phí vận chuyển và các phụ kiện yêu cầu
– Chưa bao gồm thuế V.A.T 10%
– Tổng giá sẽ dao động nếu như có sự thay đổi kích thước, kiểu dáng, địa điểm công trình,

Giá cấp hồ sơ kiểm định cục PCCC Công Trình cửa thép chống cháy tại Phan Thiết
| Hồ sơ kiểm định cục PCCC theo lô từ … đến … | Giá tiền (vnđ/ lô) |
| Từ 1 đến dưới 10 bộ | 2.000.000 |
| Từ trên 10 bộ đến 20 bộ | 4.550.000 |
| Từ trên 20 bộ đến 30 bộ | 6.050.000 |
| Từ trên 30 bộ đến 40 bộ | 7.550.000 |
| Từ trên 40 bộ đến 50 bộ | 9.050.000 |
| Từ trên 50 bộ đến 60 bộ | 10.550.000 |
| Từ trên 60 bộ đến 70 bộ | 12.050.000 |
| Từ trên 70 bộ đến 80 bộ | 13.550.000 |
| Từ trên 80 bộ đến 90 bộ | 15.050.000 |
| Từ trên 90 bộ đến 100 bộ | 18.050.000 |

Các yêu cầu tiêu chuẩn về cửa thép chống cháy
🔥 Khả năng chịu lửa (thời gian chống cháy)
Đây là yêu cầu quan trọng nhất, thường được phân loại theo thời gian chịu lửa:
| Mức độ | Thời gian chịu lửa | Ký hiệu phổ biến |
|---|---|---|
| Thấp | 60 phút | EI60 |
| Trung | 90 phút | EI90 |
| Cao | 120 phút | EI120 |
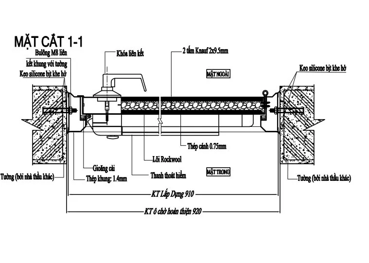
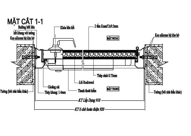
🧱Cấu tạo cửa
-
Khung và cánh cửa: Thường bằng thép mạ kẽm, dày từ 0.8 – 1.2mm tùy loại.
-
Lõi bên trong: Bông khoáng chống cháy (Rockwool), giấy tổ ong chống cháy, hoặc vật liệu gốm ceramic.
-
Ron chống cháy: Tự giãn nở khi nhiệt độ tăng (thường trên 150°C), giúp ngăn khói và khí độc.
📜 Chứng nhận & tiêu chuẩn
Tại Việt Nam, cửa thép chống cháy cần có: Giấy chứng nhận kiểm định phòng cháy chữa cháy (PCCC) do Cục Cảnh sát PCCC & CNCH cấp.
Kingdoor – đơn vị chuyên cung cấp giá cửa thép chống cháy tại Phan Thiết
- Ở chúng tôi có nhiều chi nhánh cửa hàng tạo thuận tiện trải nghiệm mua hàng.
- Cam kết hàng chính hãng đi kèm phụ kiện chất lượng
- Đội ngũ nhân viên tận tâm, chuyên nghiệp
- Vận chuyển tận nơi, thanh toán nhanh gọn
- Nhiều ưu đãi hấp dẫn khi mua hàng
- Bảo hành sản phẩm lên tới 1 năm

Liên hệ báo giá cửa thép chống cháy tại Phan Thiết
☎Hotline: 0846.11.27.27
Website: cuagocongnghiep.net.vn
Fage: Cửa nhựa giá rẻ
XEM THÊM CÁC DÒNG CỬA KINGDOOR CUNG CẤP
HỆ THỐNG CỬA HÀNG KINGDOOR
Showroom 1: 235 QL1K, Linh Xuân, Thủ Đức, Thành phố Hồ Chí Minh
Showroom 2: 602,Kinh Dương Vương, P. An Lạc, Q. Bình Tân, TP. HCM.
Showroom 3: Đường 23/10, Vĩnh Hiệp , Nha Trang, Khánh Hòa.
Showroom 4: 639,Quốc Lộ 13, phường Hiệp Bình Phước, quận Thủ Đức, thành phố Hồ Chí Minh.
Showroom 5: 671,Nguyễn Duy Trinh, P. Bình Trưng Đông, Q.2, Tp. HCM
Showroom 6: 10/1F Tô Ký, Thới Tam Thôn, Hóc Môn






